パレ昆陽池公園Ⅰ 502号室
2026/01/09
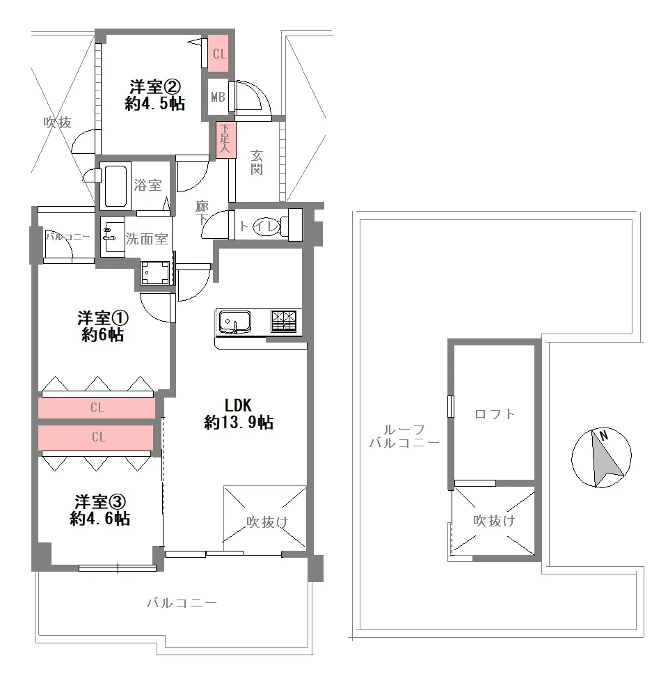
・ロフトがあり開放感のあるリビング!
・南西向きで陽当たり、通風良好なバルコニー
・ 水まわりもリフォーム済で、快適な暮らし★
・64.31㎡ 3LDK+ロフト付き
・2025年10月リノベーション完了!
・食洗器、浄水器、浴室乾燥機、レースカーテン付き
・オートロック、宅配ボックス、トランクルーム完備
●●アクセス●●
→阪急伊丹線 『伊丹』駅まで バス13分 『玉田団地』停徒歩6分
◇◆◇2025年リノベーション済み◇◆◇
システムキッチン、ユニットバス、洗面化粧台、トイレ交換
クロス、フローリング貼替、ハウスクリーニングなど
●●学校区●●
小学校→伊丹市立鴻池小学校
中学校→伊丹市立天王寺川中学校
空室のためすぐにご案内できます。火曜、水曜でも大丈夫です。
種別 | マンション |
所在地 | 兵庫県伊丹市中野東 1-298-502 |
学校区 | 伊丹市立鴻池小学校 /伊丹市立天王寺川中学校 |
販売価格 | 1,990万円 |
築年月 | 1994年12月 |
交通 | 阪急伊丹線 『伊丹』駅まで バス13分 『玉田団地』停徒歩6分 |
都市計画/用途区域 | 一種中高 |
地目 | 宅地 |
土地権利 | 所有権 |
構造 | RC |
建物階建て | 地上6階 |
所在階 | 5階 |
総戸数 | 58戸 |
間取り | 3LDK+ロフト |
専有面積 | 64.31㎡ |
バルコニー | バルコニーあり/11.38㎡ |
専用庭 | 専用庭なし |
方角 | 南西 |
管理形態 | 全部委託 |
管理費 | 12,030円 |
修繕積立費 | 21,290円 |
駐車場 | 分譲のみ |
ガスorオール電化 | ガス |
現況 | 空き家 |
引渡 | 即引き渡可 |
ペット | 不可 |
その他 |






















